Residential
More from realestate.co.nz:
Agents News

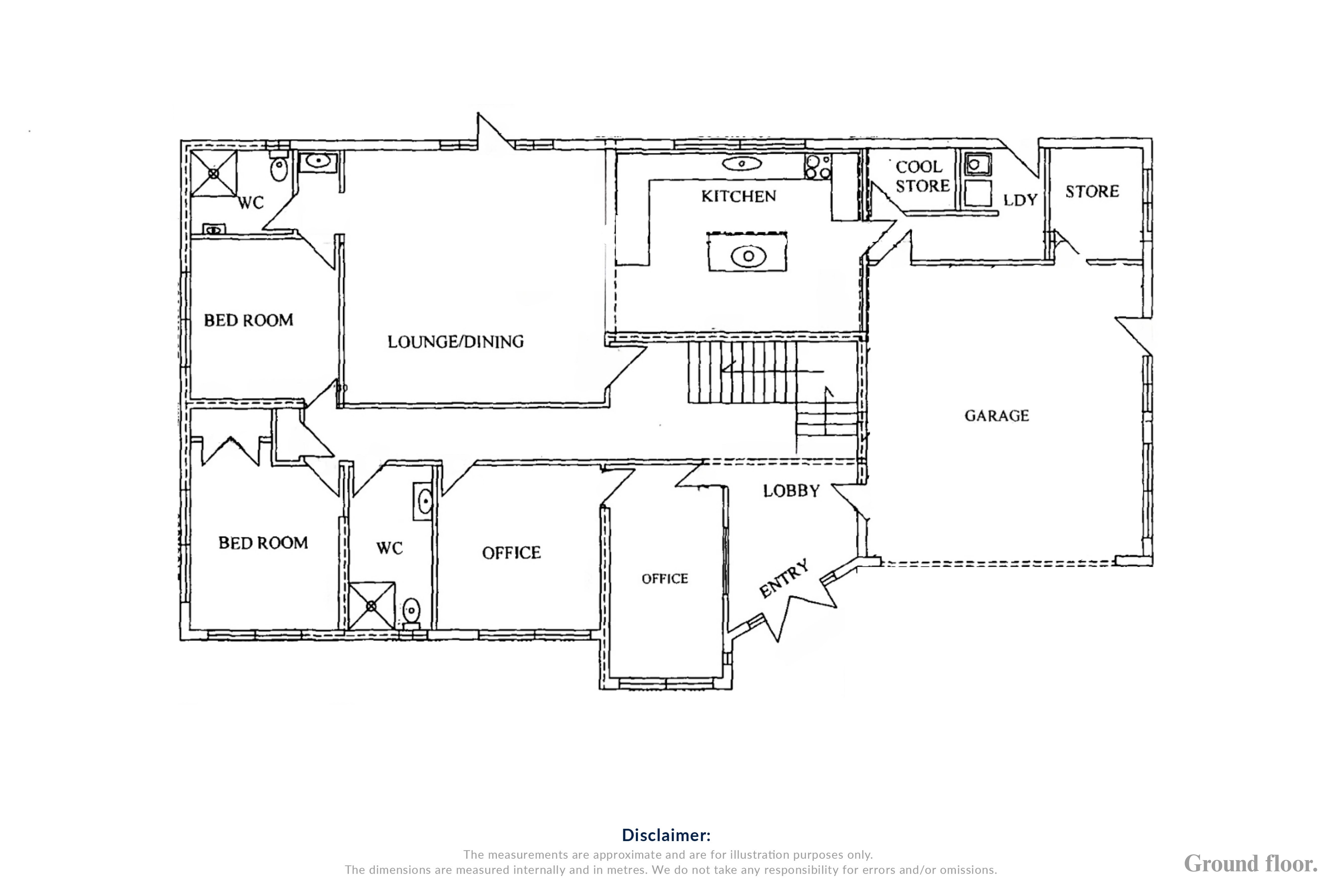
19 Woodside Avenue, Northcote, North Shore City

Low Risk. Low Effort. High Return.

dollar

Negotiation

House
Home & income
Bedroom
10
Bathroom
6
Floor area
564m2
Land area
698m2
Garage
2
Ensuite
3 ensuites
On this page:

Property details

Listing # L33443706 | Listed on 7 April

10 BEDROOMS + 6 BATHROOMS + 2 STUDIES + 2 LARGE KITCHENS + 2 LARGE LOUNGE AREAS.

This is not your average multi-bedroom investment. What truly sets this accommodation hub apart is the quality of the tenants community. With lease terms ranging from 9 months to 6 years, this property enjoys stable, long-term occupancy - a reflection of both the appeal of the accommodation and the simplicity of its all-inclusive lease structure.

Low Risk: With income spread across 10 separate tenancy agreements, this investment offers a diversified and secure revenue stream -significantly reducing the risk associated with vacancies or tenant turnover.

Low Effort: From tenant selection and advertising to cleaning, maintenance, and everything in between, a professional property manager handles all day-to-day operations. All that's left for you is to check the bank balance and cover the expenses.

High Return: The most recent financial year delivered a 7.5% gross yield and a 4.75% return on capital value - solid figures with clear room for improvement. With untapped potential to add internal value, there's a real opportunity to further enhance performance.

This is a smart, straightforward investment with strong fundamentals and upside potential - ideal for the savvy investor seeking steady income without the headaches. Whether you're a seasoned investor or just looking for a safe place to park your cash, this one is a no-brainer.

Opportunities like this don't last. Enquire today.

Your notes
Add notes for your personal reference. This can only be seen by you.

Additional features

Water closet
6 Separate toilets
Rates
Rates: $5,045.96 per annum
Other Features: New stoves are electric + gas cooktops

Schools and childcare in the area

$
$
% p.a.
years
$0 per week
Contact the agent
Name  (required)
Email  (required)
Phone
I'd like to enquire about:
Your message
A young family with pets illustration