Residential
More from realestate.co.nz:
Agents News

85B Turret Road, Tauranga South, Tauranga

Nifty Little Gem on the Water’s Edge

dollar

Asking Price $600,000

Unit
Unit
Bedroom
2
Bathroom
1
Floor area
67m2
On this page:

Open homes

Sunday
12:15pm - 12:45pm
23
Nov

Property details

Listing # 68299 | Listed on 12 May

On the city fringes yet enjoying a peaceful and secluded waterfront spot at the end of a small right of way, this brick duplex unit is an uncommon mix of compact proportions and expansive vistas. Currently a rental investment, the owners are now ready to hand over the keys to buyers with similar plans, or to retirees and first home buyers who are likely to fall in love with the location. Close to the Hairini Bridge in a neighbourhood that’s been enjoying a well-deserved surge in popularity, this is an affordable step, ripe with opportunity for those who jump quick.

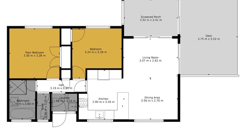
The simple yet spacious 67sqm (approx.) floor plan incorporates a carpeted open plan lounge and dining room with heat pump and sliding doors accessing a sunny conservatory. Flow outdoors to a deck and lawns for alfresco entertaining or simply relax in your own company with the dazzling water vistas a daily distraction. The stylish kitchen combines attractive blond timber laminate floor and cabinetry, modern appliances, and a sleek white tiled back splash wall. Double bedrooms include the master and both share a bathroom with bathtub, shower, vanity and toilet separate. The laundry doubles as entrance foyer and there are ample storage cupboards in the hallway and built in closets in the bedrooms.

The partially fenced cross lease title section has a dedicated car space with additional off-street parking. The easy-care gardens include a tool shed and there’s scope to do landscaping to the well-established grounds if desired. Within moments you’re in downtown central business district and Fraser Cove is nearby for major shopping outlets. Close to Tauranga Hospital, Historic Village, Welcome Bay and a short drive to the mammoth Tauranga Crossing retail mecca, this is a pivotal location for life and leisure.


Your notes
Add notes for your personal reference. This can only be seen by you.

Additional features

Outdoor Features: Sheds
Outdoor Features: Outdoor Entertainment Area
Indoor Features: Dishwasher
Indoor Features: Built In Wardrobes

Schools and childcare in the area

$
$
% p.a.
years
$0 per week
Contact the agent
Name  (required)
Email  (required)
Phone
I'd like to enquire about:
Your message
A young family with pets illustration