Residential
More from realestate.co.nz:
Agents News

29 Packer Road, Wanaka, Wanaka

Build your dream in Alpine Meadows

dollar

$795,000

Section
Section
Land area
745m2
Title type
Freehold
On this page:

Property details

Listing # 227788 | Listed on 3 July

Nestled in the sought-after Alpine Meadows neighbourhood, 29 Packer Road presents a superb opportunity to secure a generous 745sqm (approx) section in a stunning Wanaka setting.
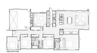
With consented plans for a four-bedroom, two-living home already in place, you have the option to fast-track your build and bring your vision to life with ease. Whether you choose to use the plans or design your own, this flat and well-positioned site provides an ideal canvas for your future home or holiday retreat.

Enjoy the natural beauty of the surrounding landscape, with mountain views, easy access to walking and biking tracks, and close proximity to Wanaka's vibrant town centre, schools, and lakefront.
Opportunities like this are rare - enquire today to receive the plans or arrange a site visit.

Call Scott McGoun on 021 201 9029 for more information or to view.

Your notes
Add notes for your personal reference. This can only be seen by you.

Schools and childcare in the area

$
$
% p.a.
years
$0 per week
Contact the agent
Name  (required)
Email  (required)
Phone
I'd like to enquire about:
Your message
A young family with pets illustration