Residential
More from realestate.co.nz:
Agents News

9 Ambrosia Street, Richmond, Tasman

Sunny Setting, Handy to All Amenities!

dollar

$892,995

House
House
Bedroom
3
Bathroom
2
Floor area
152m2
Land area
519m2
Garage
2
New build
New build
On this page:

Property details

Listing # RC8636 | Listed on 6 November

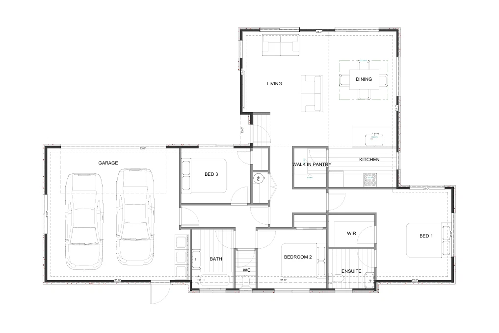
Located in the heart of The Meadows in Richmond, 9 Ambrosia Street offers a low-maintenance, turnkey house and land package that's soon to start construction. It's a great option for buyers wanting the confidence and convenience of a brand new home.

Set on a 519sqm section and positioned down a shared driveway, once complete, the home will include three generous bedrooms. The master will feature a walk-in wardrobe and ensuite, while the main bathroom will have a shower and a separate toilet.

The open-plan kitchen, dining and living space is designed for easy day-to-day living, with great indoor-outdoor flow and plenty of natural light. The kitchen will include a walk-in pantry, providing excellent storage and bench space.

The section will be fully fenced, and the driveway and patio are included. A double garage, plus additional off-street parking, completes the package.

There's peace of mind with a 10-year Master Build Guarantee, a 36-month Jennian Homes defects warranty and the Jennian completion promise. With only a 10 percent deposit required, this is a fantastic opportunity to secure a brand new home in a family-friendly location close to schools, parks and local amenities.

Your notes
Add notes for your personal reference. This can only be seen by you.

Additional features

Other park
2 other parks
Water closet
2 Separate toilets

Schools and childcare in the area

$
$
% p.a.
years
$0 per week
Contact the agent
Name  (required)
Email  (required)
Phone
I'd like to enquire about:
Your message
A young family with pets illustration