Residential
More from realestate.co.nz:
Agents News

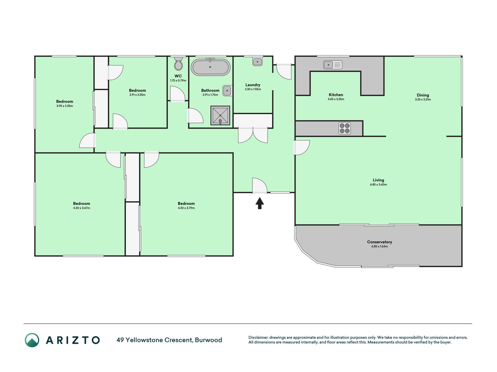
49 Yellowstone Crescent, Burwood, Christchurch City

Beautiful 4 Bedroom Family Home

dollar

Negotiation

House
House
Bedroom
4
Bathroom
1
Floor area
150m2
Land area
625m2
Garage
2
On this page:

Open homes

Sunday
11:00am - 11:30am
23
Nov

Property details

Listing # ARZ14325 | Listed on 14 November

Step into this fastidiously redecorated sunny 4-bedroom home where comfort, style, and practicality come together. Perfect for families, entertainers, or anyone seeking space to grow, this property offers an impressive blend of modern living and everyday convenience in a fantastic neighbourhood.

Key Features:

• 4 spacious bedrooms – ideal for families or work-from-home flexibility

• Large modern bathroom featuring both a bath and shower

• Open-plan living area that flows effortlessly into a sunny conservatory

• Modern well-appointed kitchen with excellent storage

• Separate laundry plus a separate toilet for added convenience

• Expansive section – perfect for entertaining, kids, pets, or future landscaping dreams

• Double garage with drive-through access for extra vehicles, trailers, or backyard projects

This home delivers easy living with a fresh, modern feel—ready for you to move in and enjoy.

Your notes
Add notes for your personal reference. This can only be seen by you.

Schools and childcare in the area

$
$
% p.a.
years
$0 per week
Contact the agent
Name  (required)
Email  (required)
Phone
I'd like to enquire about:
Your message
A young family with pets illustration