Residential
More from realestate.co.nz:
Agents News

Ridge, Warkworth, Rodney

Low-Maintenance in Warkworth - First Home Buyers Dream!

dollar

$950,000

House
House
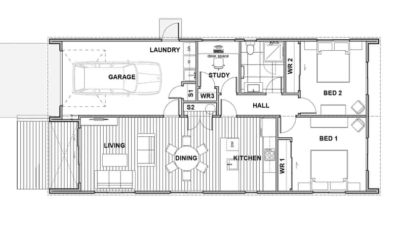
Bedroom
2
Bathroom
1
Floor area
110m2
Land area
302m2
New build
New build
On this page:

Property details

Listing # UfT5fF8gQ1GxB5H4CN_e | Listed on 17 November

Enjoy effortless living in this modern two-bedroom home, ideal for professionals or small families. The light-filled open-plan kitchen, living, and dining area flows to a sunny covered deck, perfect for relaxing or entertaining. With two spacious bedrooms, a family bathroom, dedicated study, and single garage with integrated laundry area, this home offers low-maintenance living, style, and convenience.


Secure your brand-new home & start your new home journey with Signature Homes today!


Warkworth Ridge is perfectly positioned in the scenic rolling hills of Warkworth, just 45 minutes from Auckland Central. This thoughtfully planned community offers a relaxed lifestyle, with parks, cycleways, and Pak’nSave all just moments from your front door.


Feature included:



  • Two well-sized double bedrooms with wardrobes

  • Dedicated office, perfect for working from home

  • Open-plan kitchen, living, and dining area

  • Custom-designed kitchen with quality finishes

  • Heat pump for year-round comfort in the living area

  • Large family bathroom

  • Covered outdoor living on deck

  • Single car garage with integrated laundry area


Renders are for illustrative purposes only and are intended as an artist’s impression

Your notes
Add notes for your personal reference. This can only be seen by you.

Additional features

Other park
1 other park
Study: Yes

Schools and childcare in the area

$
$
% p.a.
years
$0 per week
Contact the agent
Name  (required)
Email  (required)
Phone
I'd like to enquire about:
Your message
A young family with pets illustration