Residential
More from realestate.co.nz:
Agents News

12 Spudman Rise, Pukekohe, Franklin

Brand-New Family Living - Under Construction, ...

dollar

Negotiation

House
House
Bedroom
5
Bathroom
3
Land area
604m2
Title type
Freehold
Garage
2
On this page:

Property details

Listing # 924289 | Listed on 18 November

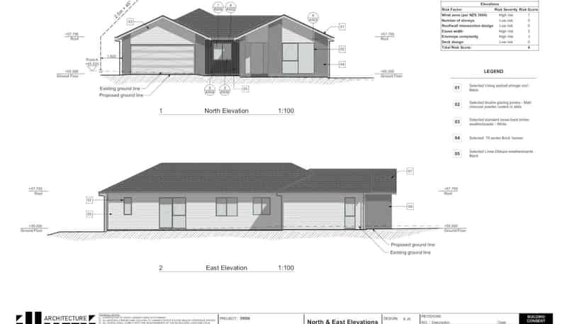
Discover your future home in this premium new Pukekohe subdivision, surrounded by beautifully crafted properties and a welcoming community atmosphere. Currently under construction and due for completion in early 2026, this thoughtfully designed residence delivers the perfect blend of modern comfort, style, and flexibility for today’s families.

Designed with extended or multi-generational living in mind, the floor plan offers exceptional space and privacy. A 228 sqm built area featuring five generous double bedrooms, including a self-contained wing with two bedrooms, its own living area, a large tiled bathroom, and a convenient kitchenette- ideal for grandparents, teenagers, or visiting guests.

At the heart of the home, a designer kitchen with quality appliances, stone benchtops, and abundant storage flows effortlessly into the open-plan dining and living areas. A separate formal lounge or media room provides the perfect space for quiet relaxation or entertaining in style.

Indoor–outdoor living is a standout feature, with expansive decking extending from the main living zone and three of the bedrooms-perfect for alfresco dining or simply soaking up the elevated views of this growing community.
The master suite is a luxurious retreat, complete with a fully tiled ensuite, large walk-in wardrobe, and its own heat pump to ensure year-round comfort.

Located in a peaceful new subdivision just minutes from Pukekohe township, Valley School, and the Bombay motorway interchange, and backing onto the sought-after Anselmi Ridge, this home combines location, lifestyle, and functionality in one exceptional package.

Whether you’re upsizing, accommodating extended family, or seeking a brand-new property built to the highest standards -this is an opportunity not to be missed.

Call today for detailed plans, specifications, and progress updates.

Your notes
Add notes for your personal reference. This can only be seen by you.

Schools and childcare in the area

$
$
% p.a.
years
$0 per week
Contact the agent
Name  (required)
Email  (required)
Phone
I'd like to enquire about:
Your message
A young family with pets illustration