Residential
More from realestate.co.nz:
Agents News

Lot 6 Iorns Street, Masterton, Masterton

Lock 'n' Leave or Savvy Investment Opportunity!

dollar

Buyer Enquiry Over $499,500

House
House
Bedroom
2
Bathroom
1
On this page:

Open homes

Sunday
1:30pm - 1:50pm
23
Nov

Property details

Listing # MST32813 | Listed on 21 November

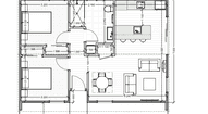
Nearing completion and surrounded by other newly built homes at the end of a quiet cul-de-sac, we are pleased to present this smart, low-maintenance home to the market. Set on a 223 sqm section, this 70 sqm property offers effortless living with two bedrooms, a stylish tiled bathroom, and sunny north-west facing open-plan living that flows seamlessly to an outdoor patio. The home is north-facing, with outdoor living positioned on the west side to capture all-day sun.

Designed for comfort and convenience, the home features full insulation, double glazing, and off-street parking. Whether you're looking for simple, easy-care living or a solid investment opportunity, this property is well worth your attention.

For further information or to arrange a viewing, get in touch with us today.

Buyer Enquiry Over $499,500

Your notes
Add notes for your personal reference. This can only be seen by you.

Additional features

Water closet
1 Separate toilet

Schools and childcare in the area

$
$
% p.a.
years
$0 per week
Contact the agent
Name  (required)
Email  (required)
Phone
I'd like to enquire about:
Your message
A young family with pets illustration