Residential
More from realestate.co.nz:
Agents News

45 Bonecrusher Street, Lincoln, Selwyn

Great Value in Great Location

dollar

Offers Over $799,000

House
House
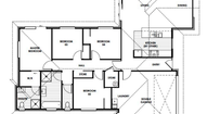
Bedroom
4
Bathroom
2
Floor area
165m2
Land area
451m2
Garage
2
On this page:

Open homes

Sunday
2:00pm - 2:30pm
23
Nov

Property details

Listing # LIC31163 | Listed on 21 November

Designed for modern living and easy entertaining, this 4-bedroom home in sought-after Lincoln is convenient, sunny and wonderfully practical.

A generous lounge forms the heart of the home, with triple slider doors that open wide to the outdoor area - perfect for BBQs, kids on the lawn and effortless indoor-outdoor flow. Smart wiring future-proofs your tech needs, keeping work, streaming and gaming simple and seamless. Four comfortable bedrooms give everyone their own space, supported by two well-appointed bathrooms for busy mornings and relaxed evenings. The fully fenced section offers security for children and pets, along with the freedom to add your own landscaping touches.

This property is ready and awaiting it's new owner - whether you are seeking access to Lincoln Primary or Lincoln High School, looking for your next investment or keen to downsize comfortably, this property delivers it all. Grab the opportunity as motivated vendors want to see this sold!


For a private viewing and/or a full information pack on this listing please contact Fiona Shearing on [email protected] or Big Red on [email protected]


Your notes
Add notes for your personal reference. This can only be seen by you.

Additional features

Other Features: Extractor Fan x2,Garage Door Motor,Garage Door Remotes,Household Keys,Smoke Detectors x2,Walk In Wardrobe

Schools and childcare in the area

$
$
% p.a.
years
$0 per week
Contact the agent
Name  (required)
Email  (required)
Phone
I'd like to enquire about:
Your message
A young family with pets illustration